Zwischenraum (Reihenhaus in Stuttgart)










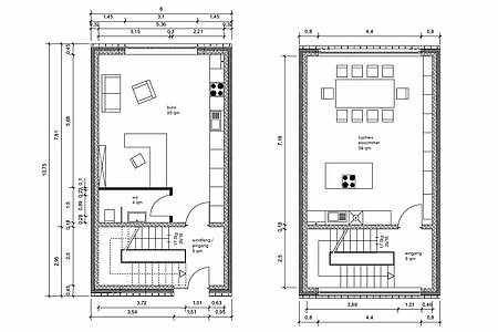
Auf einem von 4 innerstädtischen Baugrundstücken mit jeweils einem Baufenster von einer Breite von B = 6.00 m (Mittelhaus) bzw. B = 5.25m (Endhaus) und einer Länge L =10.75 m wollen 5 unterschiedliche Bauherren ihr neues Heim bauen.