Showroom für Bootsbauer in Breitbrunn am Chiemsee
Ein Bootsbauer plant für die Ausstellung seiner Elektroboote am Chiemsee neben dem Gelände des Segelclubs Breitbrunn einen Showroom zu errichten. Dieser soll stützenfrei überspannt sein.
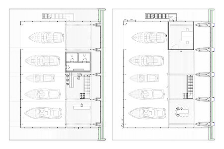
Angegliedert an den Showroom, in dem sich auch ein abtrennbarer gläserner Werkstattbereich für ein Boot befindet, ist eine zweigeschossige Einheit, bestehend aus einer den Showroom überblickenden Verkaufsebene und einem darunterliegenden Büro mit einem Mitarbeiterraum und einer Teeküche. Die zweite Ebene wird einerseits über eine Innentreppe sowie eine Stahl-Außentreppe erschlossen. Die Außentreppe dient als äußere Erschließung der neuen Einheit und gleichzeitig als zweiter Fluchtweg. Ausgestellt und gewartet werden die nachfolgend dargestellten Bootstypen.
Jeder Bootstyp muss mindestens einmal ausgestellt werden. Die Anordnung ist frei. Das Gebäude soll in Stahl und Glas konstruiert werden (Baukonstruktion, 4. Semster, SoSe 2021).
Betreuung
Kimberly Schwieder und Nicolas Strauch




Mark Diest und Anna Hulm





Xaver Braun und Lisa Midinet




Pauline Sticht und Lisa Watzl


